contreforts

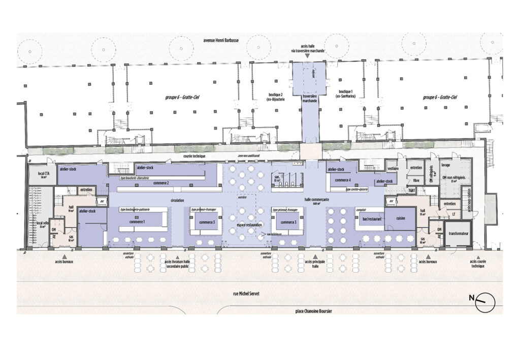
Halle gourmande et bureaux à Villeurbanne Gratte-ciel

Avec : Archipat, architecte du patrimoine - Atelier du Trèfle, paysagiste

  • maîtrise d'ouvrage : S.V.U
  • avancement : lauréat concours avril 2023
  • surface de plancher : 2 313 m²
  • coût d'objectif : 5 076 000 € H.T

Le projet de halle marchande et de bureaux consiste à concevoir un bâtiment tramé, qui exprime son identité tout en accompagnant la silhouette singulière des Gratte-Ciel de Villeurbanne. La trame, réglée sur le rythme des verrières, exprime une grande sobriété qui permet d’instaurer un dialogue subtil avec l’existant. Elle gomme les effets de superposition des différents programmes contenus dans l’enveloppe bâtie.

La structure poteaux-poutres évoque en façade l’expression de contreforts et offre une flexibilité d’aménagement dans les plateaux de bureaux. Ce dispositif apporte une grande homogénéité à l’ensemble construit et répond à l’échelle du gabarit de l’espace public contigu.

autres projets

Voir tous nos projets